229人已浏览 时间 : 2020-05-28 20:41:24 © 非特殊说明,本文版权归原作者所有,设计狮家www.shejishijia.com整理。
导语:设计:苏州尤格空间设计主创设计师:祝年微(阿木)地址:中国 苏州面积:289平方米时间:2017年12月Tags:科技公司,趣味、多元、展示

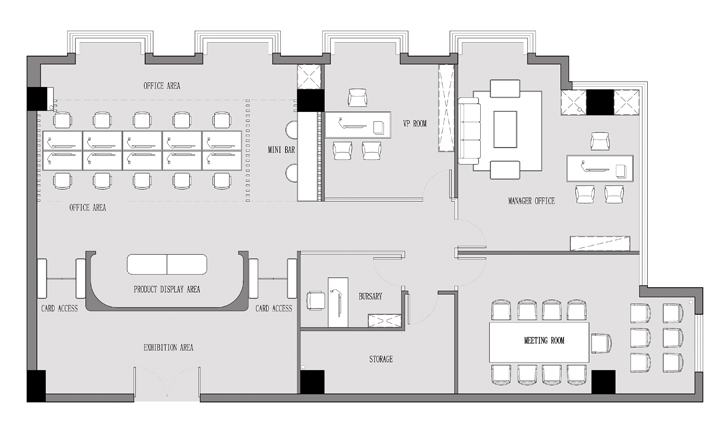
大河科技是一家主营智能道闸软硬件产品的公司,其苏州办公空间由苏州尤格空间设计打造。在与客户充分沟通后,设计师尝试提出了一个双通道,模拟地铁出入的动线方案,将公司的智能闸机产品运用到办公空间中。围绕弧形导角的产品展示区,一进一出,形成一个回形的动线关系。


入口设计向内部空间后退,将产品展示中心用一个半围合的设计手法设置在空间中心,阴阳角都进行弧形导角处理,形成一个类似弧形盒子的小空间,避免直角带来的尖锐感。



如何在有限的空间内,实现产品展示,员工办公及休闲的多重功能,同时又不失空间趣味性。设计符号上采用了长方形与三角形的结合,材料上选用杉木木方,进行组合搭建了一个专属空间,着重强调员工办公区域的重要属性。对办公区,迷你吧台区与展示区三个不同区域进行明显的划分。





员工办公区域照明灯具的选择上,为了达到的材料统一性,弃用了成品灯具转而自己设计制作。灯罩材料上选用欧松板,保证了和杉木同样的材料属性及颜色,尺寸上依照办公区域的总长度尺寸按1:0.85的比例设置。为了保证晚间工作时的照明强度不受影响,灯具面板上放弃了传统的发光灯膜,玻璃以及普通的亚克力板,特定选用了厚度仅为0.8毫米的超薄亚克力透明板。

通道区域的吊顶,利用欧松板分别制作成400*400mm以及300*300mm两种规格的方正方形盒子,进行规律的重组,形成新的吊顶形式。为了确保顶部空间统一整洁,在固定方式上放弃了传统的罗纹吊杆而是采用超细的钢丝进行了吊挂。

公共区域的吊顶选用黑色铝方通,配合白色乳胶漆墙面,灰色水泥地面,结合原木木方搭建的小房子加欧松板方盒子吊顶。颜色上采用黑白灰结合原木的总体基调营造一个简洁但不失趣味性的办公空间。


供稿:尤格空间设计,来源:时尚办公网,转载请注明。
最新评论
在线客服
官方微信
联系电话
返回顶部